Entrepôt à louer BESSAN (34550) W55607
← Retour à la recherchenon divisibles
HT HC/m²/an
A LOUER - LOCAL D'ACTIVITE DE 217 m² - ARCHIPEL PARK BESSAN
Situé à Bessan, ce futur village d'entreprises est dédié aux activités artisanales et aux services. ADVENIS vous propose à la location une surface d'activité de 217 m² (162 m² en RDC / 54 m² en mezzanine). L'emplacement bénéficie d'une accessibilité pratique aux axes principaux, offrant une excellente connexion aux villes et zones économiques environnantes. Le projet s'inscrit dans un environnement économique dynamique, propice au développement des TPE et PME locales.
Description du programme :
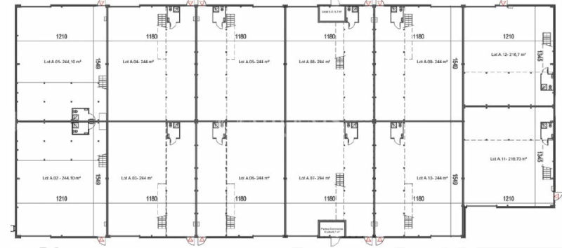
20 locaux d'activité
Surface de chaque local : 202 à 252 m²
Plain-pied avec mezzanine aménageable, adaptée à un usage de bureaux ou de stockage
Espaces modulables et fonctionnels, adaptés à la production, au stockage, à l'emballage ou à une activité artisanale
Mezzanine aménageable pour bureaux ou stockage supplémentaire
79 places de stationnement pour les occupants et visiteurs
Possibilité d'adapter chaque local selon les besoins spécifiques de l'entreprise
Les locaux sont livrés bruts, avec les réseaux et fluides en attente, permettant une personnalisation selon les besoins de chaque entreprise.
Prestations
- Hauteur sous plafond 7m
- Hauteur sous mezzanine de 4 à 4,40m
- Porte sectionnelle à partir de 4000 x 3000
- Résistance de la dalle
- Structure bardage double avec isolation thermique
- Eclairage naturel
- Panneaux photovoltaïque en toiture
- Courant triphasé 380V
- Site accessible poids lourds
- Site clos et sécurisé
- Parkings privatifs
Tableau des surfaces
| Bât/Lot | Typologie | Surface | Détail des surfaces | Loyer m²/an HT HC |
| A/11 | Local d'activité | 217 m² | Activités : 162 m² / Mezzanine: 54 m² | 110 € |
Conditions financières et juridiques
- Loyer : 110 € HT HC/m²/an
- Honoraires de commercialisation : 15% HT + TVA du montant du loyer annuel HTHC à la charge du preneur
- Type de contrat :
- Dépôt de garantie :
- Détail charges : Impôts et taxes à la charge du preneur // Détail Loyer : Location dans le cadre d'un bail commercial (3/6/9) ou 6 ans ferme à partir de 110 HT/HC /m² (parking compris)
Dessertes - BESSAN (34550)
Autoroute A9
Sortie 34 AGDE-VIAS
DPE - GES
Consommation énergétique :
Diagnostic en cours de réalisation
Gaz à effet de serre :
Diagnostic en cours de réalisation
Géorisques
Les informations sur les risques auxquels ce bien est exposé sont disponibles sur le site Géorisques : www.georisques.gouv.fr