Entrepôt à louer SCHERWILLER (67750) A54049
← Retour à la recherchenon divisibles
HT HC/m²/an
Cellules d'activités à louer - Scherwiller
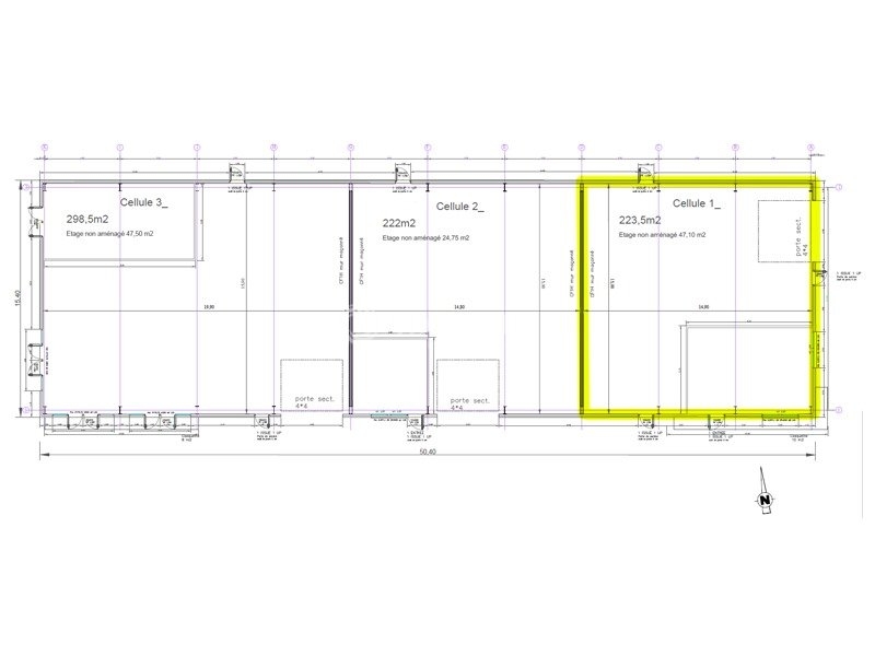
Advenis Conseil et Transaction Strasbourg vous propose à la location une cellule d'activités d'une surface de 224 m², située à Scherwiller, au Sud de Strasbourg.
Ces locaux sont composés d'environ 177 m² de hall avec porte sectionnelle 4x4 mètres, et de 47 m² de bureaux à aménager. Locaux brut, fluides en attente.
La commune de Scherwiller se trouve sur l'axe Strasbourg-Mulhouse, à 50 km au sud de Strasbourg. Elle bénéficie d'un accès rapide grâce à l'autoroute et aux routes secondaires. Un emplacement idéal pour un artisan ou une PME souhaitant y établir son siège social.
Disponibilité : dernier trimestre 2025
Prestations
- Structure métallique
- Bardage double peau
- Porte sectionnelle x1
- Dimension porte : 4x4m
- Porte piétonne x1
- Espace bureaux
- Livré brut, fluides en attente
Tableau des surfaces
| Bât/Lot | Surface | Détail des surfaces |
| Cellule 1 | 272 | Activités : 224 m² / Bureaux : 47 m² |
Conditions financières et juridiques
- Loyer : 91.91 € HT HC/m²/an
- Honoraires de commercialisation : 15% HT + TVA du montant du loyer annuel HTHC à la charge du preneur
- Type de contrat : Commercial 3/6/9 ans
- Loyer et charges : Trimestriels et d'avance
- Dépôt de garantie : 3 mois
- Révision du loyer : Annuelle d'après l'indice ILAT
- Détail charges : Impôts et taxes à la charge du preneur
Dessertes - SCHERWILLER (67750)
Axe Strasbourg - Mulhouse
A 50 km au Sud de Strasbourg
Autoroute A35, sortie 15
DPE - GES
Consommation énergétique :
Diagnostic en cours de réalisation
Gaz à effet de serre :
Diagnostic en cours de réalisation
Géorisques
Les informations sur les risques auxquels ce bien est exposé sont disponibles sur le site Géorisques : www.georisques.gouv.fr