Bureau à vendre BESSAN (34550) W55640
← Retour à la recherchenon divisibles
HT hors honoraires
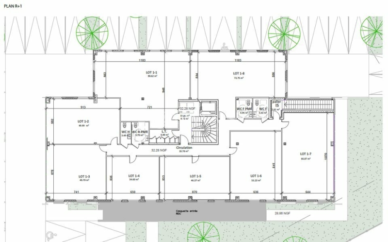
A VENDRE - PLATEAU DE BUREAUX DE 84 m²- ZAC DE LA CAPUCIERE BESSAN
À Vendre Bureaux ZAC de la Capucière
Surface : 84 m² au premier étage
ADVENIS vous propose plusieurs plateaux de bureaux à la vente au sein d'un immeuble moderne dans la ZAC de la Capucière, en entrée de village.
Points forts :
Accès direct à l'autoroute A9
Espaces modulables selon vos besoins
Livraison prévue décembre 2026
Parkings privatifs et visiteurs
Projet : Zone d'activités dynamique de 34 hectares, offrant visibilité et accessibilité.
Prestations :
Bureaux clos et couverts, modulables
Ascenseur et espaces communs soignés
Conformes aux normes environnementales en vigueur
Investissement idéal pour PME, professions libérales ou investisseurs à la recherche d'un emplacement stratégique.
N'hésitez pas à nous contacter au 04 11 66 60 41
Prestations
- Structure métallique avec planchers collaborant (béton + bac acier)
- Façades seront composées principalement d'un bardage de teinte blanche, rythmées ponctuellement de murs rideaux et
- d'éléments de serrurerie en métal anthracite.
- Bâtiment RE2020.
Tableau des surfaces
| Bât/Lot | Typologie | Surface avec parties communes | Places de parking | Prix de vente HT |
| 1.8 | Bureaux | 84,25 m² | 2 | 227.475 € |
Conditions financières et juridiques
- Prix de vente : 227 475,00 € HT hors honoraires
- Honoraires : 3% HT + TVA du montant de la cession à la charge de l'acquéreur
- Détail charges : Impôts et taxes à la charge du preneur
Dessertes - BESSAN (34550)
Autoroute A9
Sortie 34 AGDE-VIAS
DPE - GES
Consommation énergétique :
Diagnostic en cours de réalisation
Gaz à effet de serre :
Diagnostic en cours de réalisation
Géorisques
Les informations sur les risques auxquels ce bien est exposé sont disponibles sur le site Géorisques : www.georisques.gouv.fr