Bureau à vendre GEISPOLSHEIM (67118) A46315
← Retour à la rechercheDivisible à partir de 75 m²
HT hors honoraires
Plateaux de bureaux neufs à vendre - Parc du Wiesel - Geispolsheim
NOUVEAU PROJET - PARC DU WIESEL - GEISPOLSHEIM
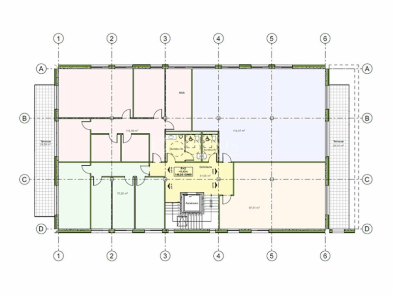
Advenis Conseil et Transaction vous propose en exclusivité à la vente 826 m² de bureaux, situés dans le nouveau Parc du Wiesel à Geispolsheim.
Ces plateaux de bureaux, divisibles à partir de 75 m², sont situés au sein d'un bâtiment de bureaux en R+2 avec ascenseur, terrasses communes à chaque niveau, parking extérieur et couvert.
Le développement du parc va se dérouler de manière progressive. Idéalement situé à proximité des embranchements autoroutiers en direction de Strasbourg, Brumath, Saverne, Entzheim, Duppigheim, Molsheim, Obernai, Barr et Sélestat.
Prestations
- NOUVEAU - PARC DU WIESEL
- Ascenseur
- Bureaux aménagés non cloisonnés
- Climatisation réversible
- Faux plafond avec luminaires Led
- Terrasses communes x2 à chaque niveau
- Sanitaires H/F communs à chaque niveau
- Parking extérieur + couvert
Tableau des surfaces
| Bât/Lot | Typologie | Surface |
| Vert | Bureaux | 111,78 |
| Bleu | Bureaux | 101,92 |
| Rose | Bureaux | 123,16 |
| Violet | Bureaux | 125,13 |
| Vert | Bureaux | 68,49 |
| Jaune | Bureaux | 66,49 |
| Jaune | Bureaux | 67,51 |
Conditions financières et juridiques
- Prix de vente : 2 750,00 € HT/m² hors honoraires
- Honoraires : 5% HT + TVA du montant de la cession à la charge de l'acquéreur
- Détail charges : Montant des charges à définir.
Dessertes - GEISPOLSHEIM (67118)
A 11 km de Strasbourg
Autoroute A35
Sortie La Vigie puis RD222
A 7 km de l'Aéroport international Strasbourg-Entzheim
DPE - GES
Consommation énergétique :
Diagnostic en cours de réalisation
Gaz à effet de serre :
Diagnostic en cours de réalisation
Géorisques
Les informations sur les risques auxquels ce bien est exposé sont disponibles sur le site Géorisques : www.georisques.gouv.fr