Entrepôt à louer MAUGUIO (34130) W54690
← Retour à la recherchenon divisibles
HT HC/m²/an
A LOUER - LOCAL D'ACTIVITE DE 1.102 m² - MAUGUIO
Parc d'Activités Mauguio (Montpellier Aéroport Méditerranée)
STONEHEDGE développe, aux portes de Montpellier et au coeur de la zone fret de l'Aéroport Montpellier Méditerranée (commune de Mauguio), un nouveau Parc d'Activités offrant une surface de plancher totale de 7 162 m².
Caractéristiques du programme
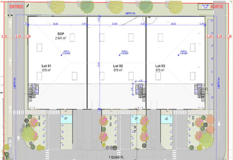
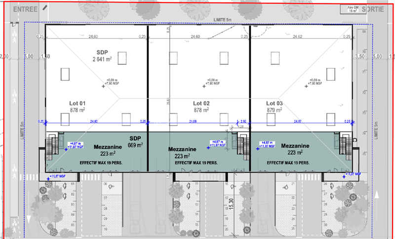
2 bâtiments modernes et fonctionnels
7 lots divisibles à partir de 946 m²
Locaux proposés à la location
Organisation des espaces :
RDC : zone d'activité / stockage / atelier
R+1 : bureaux aménageables
Atouts énergétiques et durables
Installation d'une centrale photovoltaïque de 500 KWc sur les toitures
Projet d'investissement et d'exploitation assuré par STONEHEDGE ENR
Démarche écoresponsable favorisant la performance énergétique et la valorisation du site
Localisation stratégique
En bordure immédiate de l'autoroute A709
Accès direct aux agglomérations de Montpellier, Nîmes et Béziers
Positionnement idéal sur l'axe de la Vallée du Rhône vers l'Espagne
Proximité de l'aéroport et de la zone fret, renforçant l'attractivité logistique
Ce parc d'activités s'adresse particulièrement aux PME/PMI et TPE souhaitant s'implanter dans un environnement dynamique, durable et parfaitement connecté.
Prestations
- Programme d'activités neuf
- Certification BREEAM
- Terrain : 12 000 m²
- Surface totale du projet : 7162m²
- PC : Obtenu et purgé
- Type de construction : Structure béton ou mixte en bois lamellé-collé/béton
- Couverture : Bac acier isolé
- Toiture : Centrale photovoltaïque
- Isolation des murs : Bardage double peau isolé
- Hauteur libre sous poutre : 8m
- Charge au sol : 3t/m²
- Accès de plain-pied : 7 (4m H x 3m L)
- Accès à quai : 7
- Voirie lourde : oui
- Parking VL : 75
- Chauffage entrepôt
- Chauffage pour maintien hors gel
- Chauffage - rafraichissement réversible
- Plateaux non cloisonnés
- Hauteur sous-plafond : 2,7m
Tableau des surfaces
| Bât/Lot | Surface | Détail des surfaces | Loyer m²/an HT HC | Parking sous-sol/Parking extérieur |
| 2Ba/3 | 1102 | Activités : 879 m² / Bureaux : 223 m² | 110 | 0/10 |
Conditions financières et juridiques
- Loyer : 110 € HT HC/m²/an
- Honoraires de commercialisation : 15% HT + TVA du montant du loyer annuel HTHC à la charge du preneur
- Type de contrat :
- Dépôt de garantie :
- Détail charges : Impôts et taxes à la charge du preneur // Détail Loyer : Taxe foncière prévisionnelle :
- Année 1 et 2 : 5.10/m²/an/HT
- Années suivantes : 7.23Euro/m²/an/HT
- Charges locatives : 10Euro/m²/an/HT
- Redevance domaniale : 5Euro/m²/an/HT (sur la SDP)
Conditions fiscales
- Taxe foncière : 5.1 €/m²/an
Dessertes - MAUGUIO (34130)
Montpellier centre à 15 min
Béziers et Nîmes à 45 min
A 709 - Sortie 29 - Direction Montpellier - EST
3 autoroutes A7, A75, A9
N106, D68, D612, D979
DPE - GES
Consommation énergétique :
Diagnostic en cours de réalisation
Gaz à effet de serre :
Diagnostic en cours de réalisation
Géorisques
Les informations sur les risques auxquels ce bien est exposé sont disponibles sur le site Géorisques : www.georisques.gouv.fr