Bureau à louer BLOIS (41000) VB53636
← Retour à la recherche
Surface
942 m²
Divisible à partir de 206 m²
Loyer
Nous consulter
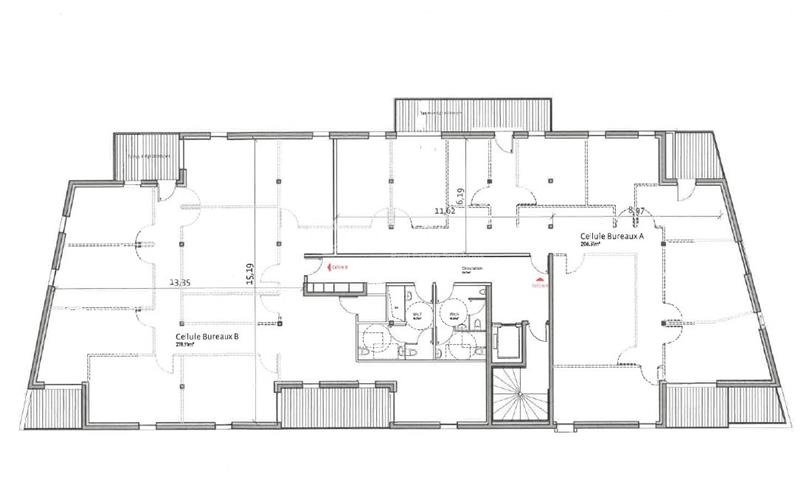
2 plateaux de bureaux plus de 200 m² chacun - programme neuf - Blois gare - à louer
ADVENIS BLOIS vous propose, à la location, 2 plateaux de bureaux indépendants, dont la superficie est de 206 et 220 m² environ, en R+1 d'un immeuble en construction avec places de parking à proximité immédiate de la gare Blois-Chambord.
Ces biens seront disponible à la location fin 2026.
Prestations
- Ascenseur
- Huisseries métalliques
- Climatisation
- Sol moquette et / ou PVC
- Murs peints
- Faux plafond
- Sanitaire PMR avec sol carrelage
- 7 places de parking en sous-sol
- Local à vélos
- Badges Vigik
- Terrasses / balcons
Tableau des surfaces
| Bât/Lot | Typologie | Surface | Parking sous-sol/Parking extérieur |
| Lot A | Bureaux | 243 | 4/5 |
| Lot B | Bureaux | 228 | 3/5 |
| Lot A | Bureaux | 243 | 4/5 |
| Lot B | Bureaux | 228 | 3/5 |
Conditions financières et juridiques
- Loyer : nous consulter
- Honoraires de commercialisation : 15% HT + TVA du montant du loyer annuel HTHC à la charge du preneur
- Type de contrat : Commercial 3/6/9 ans
- Loyer et charges : Trimestriels et d'avance
- Dépôt de garantie : 3 mois
- Révision du loyer : Annuelle d'après l'indice ILAT
- Détail charges : Impôts et taxes à la charge du preneur
- Détail Loyer : Bureaux aménagés mais non cloisonnés
- Cloisonnement possible mais avec un complément du prix du loyer
Dessertes - BLOIS (41000)
Echangeur A10 à 10 minutes
A proximité de la gare
Desserte bus
DPE - GES
Consommation énergétique :
Diagnostic en cours de réalisation
Gaz à effet de serre :
Diagnostic en cours de réalisation
Géorisques
Les informations sur les risques auxquels ce bien est exposé sont disponibles sur le site Géorisques : www.georisques.gouv.fr
Ces annonces pourraient vous intéresser :
Recherches populaires
Location bureaux Paris
Location bureaux Lyon
Location bureaux Toulouse
Location bureaux Bordeaux
Location bureaux Lille
Location bureaux Nantes
Location bureaux Strasbourg
Location bureaux Montpellier
Location bureaux Tours
Vente bureaux Paris
Vente bureaux Lyon
Vente bureaux Toulouse
Vente bureaux Bordeaux
Vente bureaux Lille
Vente bureaux Nantes
Vente bureaux Strasbourg
Vente bureaux Montpellier
Vente bureaux Tours